Finishes accent design
Finishes accent design
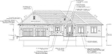
Architectural detailing coupled with great finsih selection add a treasured appeal to the exterior.


Craftsman Comfort

Craftsman detailing adds to this comfortable home plan with an open design.

Home Size: 2,440 SF
Home Style: Craftsman


Exterior Images (click to view larger)

scale and proportion
scale and proportion
Simple lines and symmetry create scale and proportion.
color and detail
color and detail
Great finish selections and architectural detailing come together to create interest and subtle comfort.

Interior Images (click to view larger)

Kitchen
Kitchen
Wide aisles, comfortable island seating and ample work areas integrate work and entertaining.
Built-in Mud Room cabinetry
Built-in Mud Room cabinetry
Bench and built-ins create suitable space to store seasonal items.
Owner's Bath
Owner's Bath
Transom adds light and parallels vanity array.
Open plan
Open plan
Common spaces come together in crafting an easy flow throughout.

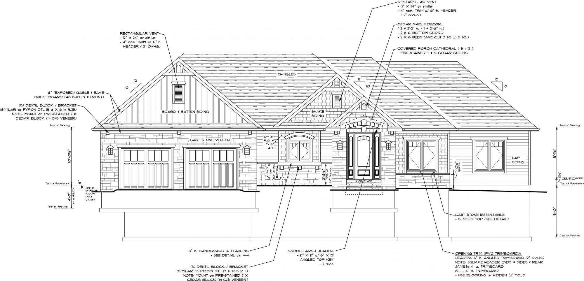
Builder Drawings (click to view larger)

Front elevation
Front elevation
Clear and detailed drawings with 'Builder' level of working drawings.


BACK